Theo Sở Xây dựng TP Đà Nẵng, trong hai năm 2016 và 2017, Sở Xây dựng đã cấp phép xây dựng 06 dự án căn hộ khách sạn, với tổng cộng 7.590 căn hộ trên địa bàn. Đối với dự án Khu nghỉ dưỡng và nhà ở cao cấp The Empire, Sở Xây dựng đã cấp phép xây dựng 1.969 căn hộ khách sạn (Tòa nhà Cổ Cò 1: 686 căn hộ, Tòa nhà Cổ Cò 2: 637 căn hộ, Tòa nhà Cổ Cò 3: 536 căn hộ, Tòa nhà Naman Garden: 110 căn hộ).
“Hiện nay, chưa có quy định pháp luật cụ thể về loại hình đầu tư căn hộ khách sạn. Thủ tướng Chính phủ đang giao Bộ Xây dựng và các bộ, ngành liên quan tham mưu cho Chính phủ ban hành các quy định về loại hình đầu tư căn hộ khách sạn. Trong thời gian qua, để tháo gỡ vướng mắc liên quan đến công tác quản lý nhà nước, Sở Xây dựng đã chủ động tham mưu UBND TP có văn bản đề nghị Bộ Xây dựng hướng dẫn một số nội dung về quy chuẩn, tiêu chuẩn thiết kế căn hộ khách sạn, điều kiện kinh doanh bất động sản hình thành trong tương lai,…” - bà Mai Thị Thùy Linh, Trưởng Phòng Quản lý nhà và thị trường bất động sản, Sở Xây dựng TP Đà Nẵng - cho biết.
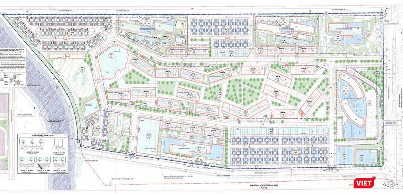
Trước thông tin căn hộ khách sạn tại đây được chuyển thành căn hộ chung cư, đại diện Sở Xây dựng cho biết, ngày 01/02/2019, Chủ tịch UBND TP Đà Nẵng đã có Quyết định 593/QĐ-UBND phê duyệt điều chỉnh quy hoạch chi tiết TL 1:500 Phân khu quy hoạch số 01 - Khu nghỉ dưỡng và nhà ở cao cấp The Empire, có nội dung liên quan đến việc chuyển đổi căn hộ khách sạn (không hình thành đơn vị ở) thành căn hộ chung cư (hình thành đơn vị ở).
Cụ thể, cho phép chuyển đổi 1.016 căn hộ khách sạn trong tổng số 1.856 căn hộ khách sạn tại các công trình đang xây dựng tại cụm HH3 (Tòa nhà Cổ Cò 1), HH5 (Tòa nhà Cổ Cò 2), HH2 (Tòa nhà Cổ Cò 3) thành căn hộ chung cư; chuyển đổi 554 căn hộ khách sạn trong tổng số 1.657 căn hộ khách sạn tại công trình chưa xây dựng tại cụm HH1 (Tòa nhà Cocobay Tower) thành căn hộ chung cư; và chuyển đổi các công trình căn hộ khách sạn cao tầng chưa xây dựng tại các cụm HH4, HH6, HH7 thành căn hộ chung cư, biệt thự, nhà liền kề.
Bên cạnh đó, Đà Nẵng cho phép bổ sung quy hoạch một số công trình để bố trí văn phòng quản lý, công trình phụ trợ, trường học, trạm y tế, nhà sinh hoạt cộng đồng, trung tâm thương mại, nhà xe, … đảm bảo đáp ứng nhu cầu của người dân.
Cũng theo Sở Xây dựng, để chuyển đổi căn hộ khách sạn thành căn hộ chung cư, UBND TP Đà Nẵng yêu cầu chủ đầu tư phải thỏa thuận cụ thể với khách hàng để làm cơ sở lập hồ sơ thiết kế điều chỉnh, gửi Cục Quản lý hoạt động xây dựng (Bộ Xây dựng) có ý kiến, trước khi Sở Xây dựng cấp phép xây dựng điều chỉnh theo quy định.
Riêng đối với các công trình chưa xây dựng, chủ đầu tư tổ chức lập hồ sơ thiết kế, gửi Cục Quản lý hoạt động xây dựng - Bộ Xây dựng thẩm định, trước khi Sở Xây dựng cấp phép xây dựng theo quy định.
Đồng thời, chủ đầu tư phải triển khai đầu tư đồng bộ các công trình hạ tầng kỹ thuật, hạ tầng xã hội theo đúng quy hoạch chi tiết được duyệt, phù hợp với tiến độ công trình nhà ở, đảm bảo chất lượng dịch vụ đáp ứng nhu cầu của người dân đến ở.
![]() |
|
Một góc Tổ hợp Cocobay Đà Nẵng
|
Liên quan đến thỏa thuận chi phí chuyển đổi căn hộ khách sạn thành căn hộ chung cư, thu nhập cam kết, Sở Xây dựng đề nghị hai bên căn cứ hợp đồng/thỏa thuận đã ký giữa chủ đầu tư và khách hàng để xử lý các vấn đề có liên quan. “Trong trường hợp có tranh chấp, đề nghị các bên liên hệ Tòa án có thẩm quyền để xem xét, giải quyết” – Trưởng phòng Quản lý nhà và thị trường bất động sản, Sở Xây dựng Đà Nẵng - nhấn mạnh.
Đối với hoạt động kinh doanh bất động sản, Sở Xây dựng đã tham mưu Chủ tịch UBND TP Đà Nẵng ban hành quyết định xử phạt vi phạm hành chính đối với chủ đầu tư về hành vi thu tiền của bên mua bất động sản hình thành trong tương lai vượt tỉ lệ phần trăm giá trị hợp đồng theo quy định, hành vi bán nhà ở thương mại hình thành trong tương lai mà chưa được ngân hành thương mại có đủ năng lực thực hiện bảo lãnh nghĩa vụ tài chính theo quy định và bàn giao, đưa công trình vào sử dụng khi chưa có văn bản chấp thuận kết quả nghiệm thu của cơ quan quản lý Nhà nước,… với số tiền 160 triệu đồng.
