Hiện, Sở GTVT đã đề nghị UBND quận Hải Châu chủ trì, tổ chức lấy ý kiến của nhân dân tại khu vực về quy hoạch bãi đỗ xe tập trung tại khu vực trung tâm.
Cụ thể, thực hiện chủ trương của UBND TP Đà Nẵng, Sở GTVT đã phối hợp với Sở Xây dựng, Viện Quy hoạch xây dựng, đơn vị Tư vấn lập quy hoạch tổng mặt bằng về lấy ý kiến của nhân dân trong khu vực đối với khu đất số 172 Nguyễn Chí Thanh và khu đất số 10 Lý Thường Kiệt để làm bãi đỗ xe tập trung.
Theo Sở GTVT, hiện quy hoạch mặt bằng đã hoàn thành. Sở phối hợp với UBND quận Hải Châu để tổ chức triển khai lấy ý kiến của người dân theo đúng quy trình và luật định. Trên sơ sở lấy ý kiến người dân, UBND quận Hải Châu sẽ tổng hợp, phản hồi kết quả về Sở Xây dựng, Sở GTVT và các cơ quan chuyên ngành hoàn thiện báo cáo UBND TP nhằm sớm đưa bãi đỗ xe tập trung vào sử dụng, nhằm đáp ứng nhu cầu giao thông đô thị, góp phần giảm thiểu tình trạng ùn tắc giao thông do phương tiện đậu đỗ trên các tuyến đường trung tâm.
![]() |
|
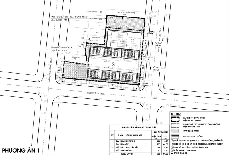
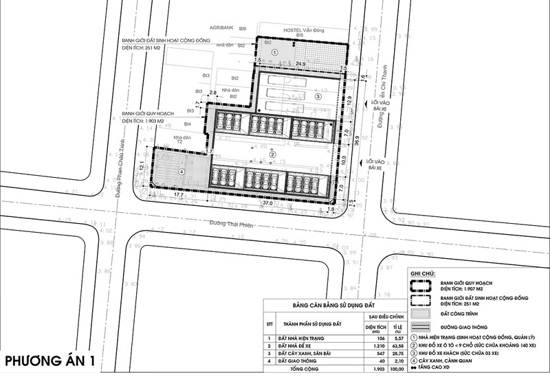
Phương án xây dựng bãi đỗ xe tập trung tại địa chỉ 172 Nguyễn Chính Thanh bằng công nghệ xếp hình với công suất đáp ứng 140 xe
|
Hai lô đất trên có nguồn gốc là đất công sản. Trong đó, lô đất địa chỉ 172 Nguyễn Chí Thanh trước đây được Công ty xăng dầu Total thuê và đã hết hạn, lô đất số 10 Lý Thường Kiệt hiện là trụ sở Bảo hiểm xã hội quận Hải Châu sẽ di dời sang vị trí khác.
Về phương án, đối với lô đất 172 Nguyễn Chí Thanh có diện tích hơn 1.900m2, hai mặt tiền Thái Phiên và Nguyễn Chí Thanh sẽ được quy hoạch xây dựng nhà khu đỗ xe tập trung với nhà để xe rộng 1.210m2, thiết kế cao 6 tầng, sử dụng công nghệ xếp hình với sức chứa khoảng 140 xe loại dưới 9 chỗ và khu đỗ xe khách với sức chứa 03 xe; Diện tích còn lại được sử dụng làm đường giao thông nội bộ và cây xanh sân bãi.
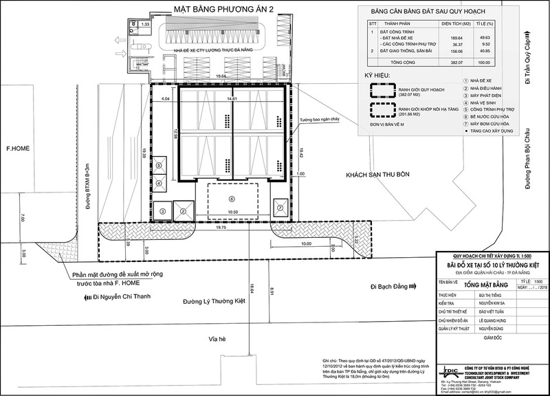
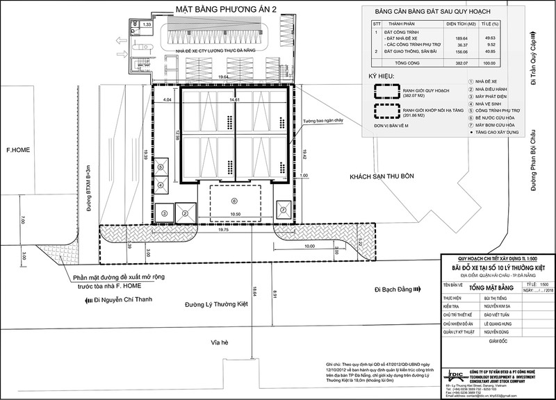
Khu đất số 10 Lý Thường Kiệt có diện tích hơn 382m2, tại đây thiết kế khu nhà để xe 12 tầng và 9 tầng, sử dụng công nghệ tháp với khả năng đáp ứng 80 xe ô tô loại 4-5 chỗ trên diện tích gần 190m2; diện tích còn lại được sử dụng làm công trình phụ trợ, đường giao thông và sân bãi.
![]() |
|
Khu đất số 10 Lý Thường Kiệt có diện tích hơn 382m2, tại đây thiết kế khu nhà để xe 12 tầng và 9 tầng, sử dụng công nghệ tháp với khả năng đáp ứng 80 xe ô tô loại 4-5 chỗ
|
Theo Sở GTVT TP Đà Nẵng, hiện đang có rất nhiều công nghệ để sử dụng trong việc xây dựng bãi đỗ xe nên về mặt công suất có thể được nâng lên với số lượng xe lớn hơn.

